ホーム > 埼玉県の貸倉庫 > 戸田・川口エリアの貸倉庫 > 埼玉県川口市峯の貸倉庫・工場 (347.66坪)
賃貸条件
| 賃料 | 1,600,000円(税別) |
|---|---|
| 坪単価 | 4,603円 |
| 敷金(保証金) | 3ヶ月 |
| 礼金 | 1ヶ月 |
| 使用開始日 | 即日 |
物件概要
| 物件所在地 | 埼玉県川口市峯 |
|---|---|
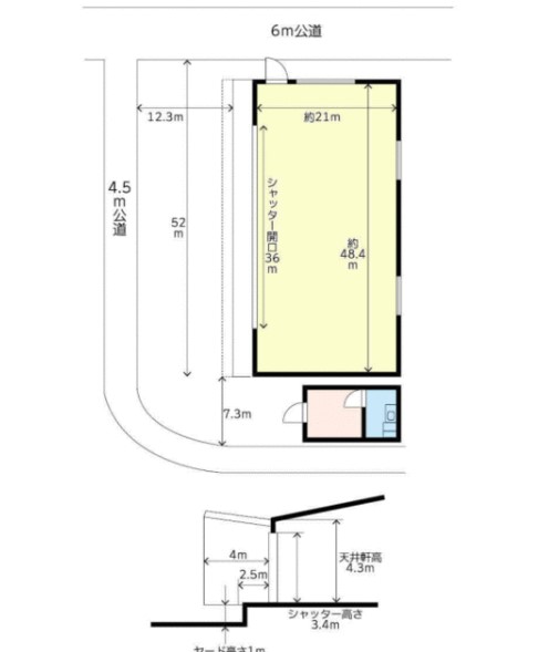
| 建物床面積 | 347.66坪(1,149.29m2) |
| 敷地面積 | - |
| 面積内訳 |
倉庫:347.66坪 |
| 建物構造 |
鉄骨造 |
| 軒高 | - |
| 用途地域 | 第一種住居地域 |
| 前面道路幅員 | - |
| 建物階数 |
平家建 |
| 備考 | - |
周辺地図
※周辺地図ですので、実際の所在地とは異なる場合がございます。
このエリアのおすすめ物件
埼玉県市区町村一覧
- さいたま市エリア (187件) さいたま市浦和区 (3件) さいたま市南区 (31件) さいたま市緑区 (16件) さいたま市桜区 (26件) さいたま市中央区 (8件) さいたま市大宮区 (10件) さいたま市西区 (12件) さいたま市北区 (32件) さいたま市見沼区 (14件) さいたま市岩槻区 (35件)
- 戸田・川口エリア (257件) 戸田市 (78件) 川口市 (170件) 蕨市 (9件)
- 上尾・桶川・伊奈エリア (74件) 上尾市 (35件) 蓮田市 (7件) 桶川市 (12件) 北本市 (5件) 鴻巣市 (6件) 伊奈町 (9件)
- 草加・三郷・八潮エリア (289件) 草加市 (43件) 八潮市 (61件) 三郷市 (61件) 吉川市 (18件) 越谷市 (59件) 春日部市 (35件) 松伏町 (12件)
- 加須・久喜・羽生エリア (69件) 加須市 (32件) 幸手市 (2件) 久喜市 (10件) 羽生市 (8件) 白岡市 (6件) 杉戸町 (11件) 宮代町 (0件)
- 和光・朝霞・志木エリア (86件) 朝霞市 (17件) 新座市 (37件) 和光市 (17件) 志木市 (15件)
- 所沢・三芳エリア (141件) 所沢市 (71件) ふじみ野市 (8件) 富士見市 (13件) 三芳町 (49件)
- 川越・鶴ヶ島・東松山エリア (116件) 川越市 (65件) 鶴ヶ島市 (23件) 坂戸市 (8件) 東松山市 (8件) 川島町 (6件) 吉見町 (6件) 毛呂山町 (0件)
- 狭山・入間・日高エリア (105件) 狭山市 (32件) 入間市 (53件) 飯能市 (7件) 日高市 (13件)
- 熊谷・行田・秩父エリア (62件) 熊谷市 (19件) 行田市 (9件) 深谷市 (13件) 本庄市 (7件) 秩父市 (0件) 寄居町 (0件) 小川町 (2件) 嵐山町 (3件) 滑川町 (0件) 鳩山町 (2件) ときがわ町 (2件) 上里町 (0件) 神川町 (2件) 長瀞町 (0件) 皆野町 (0件) 小鹿野町 (1件) 横瀬町 (0件) 越生町 (0件) 美里町 (2件) 東秩父村 (0件)
























